APPARTAMENTO BILIVELLI CON TERRAZZO

Vendita

230.000 €

Info generali
  • Codice: 1901
  • Mq: 80
  • Prezzo: 230.000 €
  • Locali: 2
  • Bagni: Si
  • Camere: 1
  • Garage: Si
  • Box auto: Posto auto scoperto
  • Stato interno: Buono
Descrizione

Nel contesto di un bellissimo casale, attraverso i suoi oltre 500 anni di storia, nasce circondato dalla natura ed i suoi privilegi: la quiete, un ambiente sano e tutta la disponibilità del luogo. Costruito nel 1600, il Casale Mostacciano si erge nel luogo noto per le sue vigne ed il suo mosto, da cui la zona prende il nome. La proprietà è immersa in un parco di 3.200mq. circa ricco di vegetazione, nell’antica dimora del ‘600 sono stati sapientemente ricavati dodici appartamenti e più precisamente 5 monolocali e 7 bilocali, tra i quali due attici, tutti con rifiniture di pregio, arredamenti, imponenti camini, dotazioni pensate e realizzate per ottenere il massimo comfort in ambienti eleganti, in cui chi vi abita si sente coccolato e avvolto da un’atmosfera di grande fascino. Tutti gli appartamenti sono provvisti di aria condizionata, cassaforte, di cucina attrezzata con lavastoviglie, di televisori con ricezione satellitare, travi in legno e grate anti intrusione.
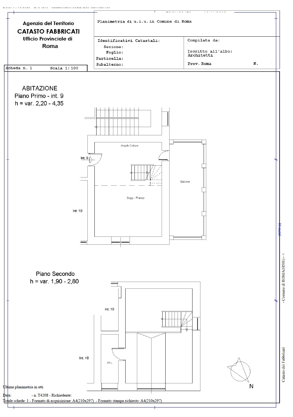
Proponiamo in vendita un delizioso attico bilivelli di 76mq posto al piano primo e composto al primo livello da ingresso, spazioso soggiorno, una cucina non abitabile ed un terrazzo con vista gradevole sul parco circostante; al secondo livello, collegato da una comoda scala interna in legno, è composto da una comoda camera matrimoniale e da un bagno con doccia. Il soffitto mansardato con travi in legno a vista ha un’altezza che oscilla da un massimo di 4,35mt a un minimo di 2,20mt. L’immobile non dispone di pertinenze. Possibilità di posto auto scoperto.
Il casale sorge a pochi minuti in auto dal cuore del quartiere EUR, che rappresenta, attualmente, oltre ad una zona residenziale ricca di spazi verdi, anche la sede di numerosi uffici, sia pubblici che privati, tra cui sono da ricordare la Confindustria, il Ministero della Salute, il Ministero delle Comunicazioni, il Ministero dell’Ambiente, la SIAE, l’Istituto per il Commercio Estero, la sede centrale dell’ENI nel grattacielo posto ad una delle estremità del laghetto, la sede centrale di Unicredit, la sede centrale delle Poste Italiane, la sede dell’INAIL, collocata nella torre omonima, la sede dell’INPS nonché le sedi italiane di numerose multinazionali. Inoltre, nelle immediate vicinanze del Casale sorgono gli Istituti Fisioterapici Ospitalieri (IFO), che costituiscono il primo Istituto di Ricovero e Cura a Carattere Scientifico – IRCCS di Roma. La fermata della metropolitana più vicina è a 5 minuti di auto di distanza. In 15 minuti in auto si raggiunge il lungomare di Ostia.
Le informazioni riportate non hanno alcun contenuto contrattuale. Le metrature commerciali sono puramente indicative. I dati riguardanti le informazioni commerciali relative alle inserzioni pubblicate provengono direttamente all'agenzia immobiliare dai relativi incarichi di mediazione. La LR Immobiliare S.r.l. declina ogni responsabilità per eventuali indicazioni erronee, con la precisazione che le indicazioni soprariportate non costituiscono base contrattuale.
Rif. LEOV0014401-INT. 9 Prezzo richiesto per il solo appartamento: Euro 230.000. Possibilità di acquisto di un box auto di 50mq con prezzi a partire da Euro 40.000

Planimetrie
Mappa

Visita il nostro
CANALE